長浜市 山階町 貸店舗 一棟貸し イオン長浜店 徒歩4分


詳細画像はコチラ
※パスワードはお問合せ下さい。
| 賃料条件 | |
|---|---|
| 名称 | 長浜市 山階町 貸店舗 一棟貸し |
| 賃料 | 385,000円 |
| 駐車場 | 有り(6台) 無料 |
| 管理費 | 16,500円 |
| 町内会費 | 実費 |
| 敷金 | 3カ月分 |
| 礼金 | 3.3カ月分 |
| 家賃保証会社 | 要加入 |
| 火災保険 | 要加入 |
| 仲介手数料 | 賃料1ヵ月分+消費税 |
| 物件概要 | |
|---|---|
| 交通 | 北陸本線 長浜駅 バス8分 「山階」徒歩9分 |
| 所在地 | 滋賀県長浜市山階町 |
| 入居可能日 | 2026年1月以降 要相談 |
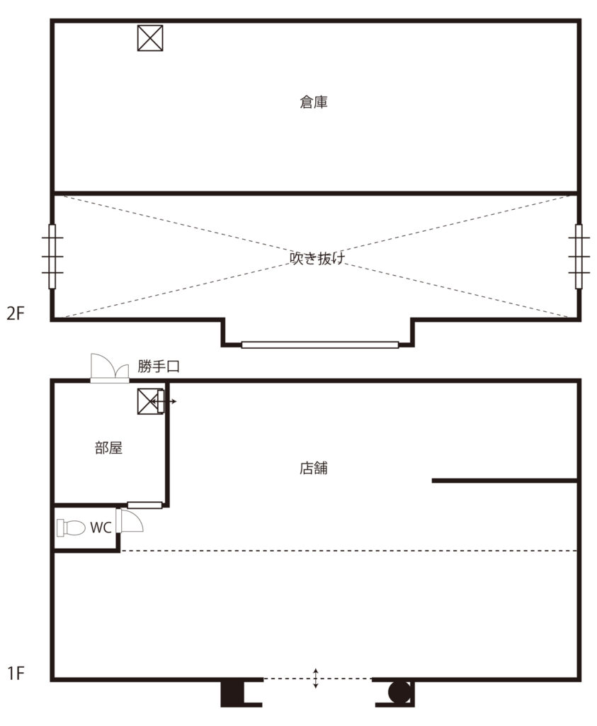
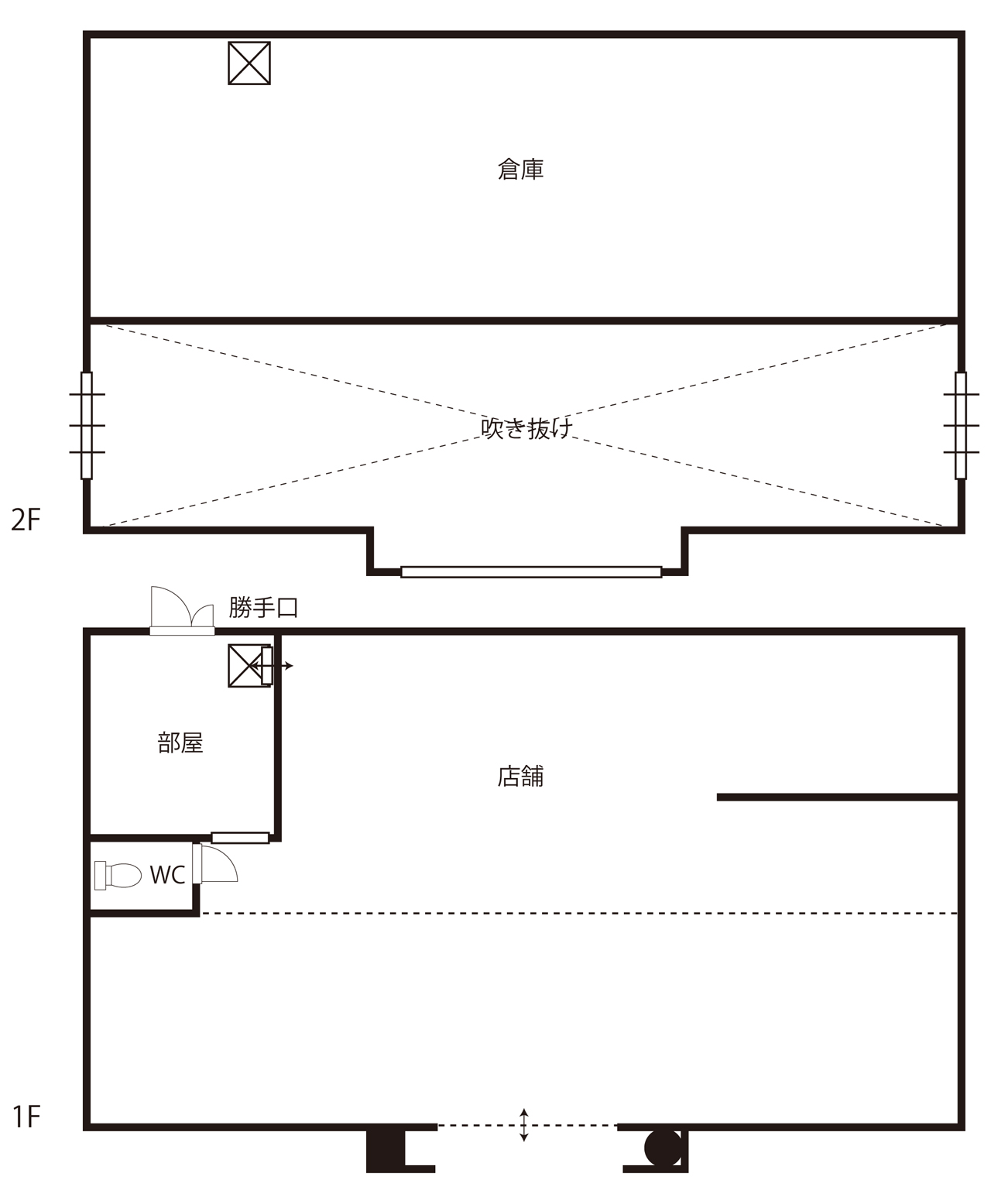
| 間取り | 1棟貸し |
| 建物面積 | 229.23㎡ (1階145.80㎡ 2階83.43㎡) |
| 土地面積 | 369.60㎡ |
| 建物構造 | 鉄骨造 |
| 完成年月 | 2000年11月 |
| 階数 | 1階/2階 |
| 接道 | 東15.0m 西6.0m |
| 種別 | 貸店舗 |
| 契約期間 | 2年更新型 |
| 更新料 | 新家賃1カ月分 |
| 設備項目 |
| 上水道、公共下水、プロパンガス、電気、トイレ |
| 2025年12月末退去予定 |
| ※あいおい火災保険加盟必須(管理会社指定) |
| ※日本セーフティー(管理会社指定) |
| ※設備の有償譲渡有(美容院設備、エアコン、給湯器など)。価格に関してはお問い合わせ下さい。設備不要の場合は事前にお申し出下さい。返却時原状回復(借主負担) 警備会社(セコム)継続は要相談 現状有姿渡し |
| ※現在営業中(2025年12月30日まで)の為、内見を希望される場合は家主より日時を指定させて頂きます。基本的には定休日の月曜日となります。 |
| ※その他、詳しくはお問合せ下さい。 |
| ※美容院、サロン、アパレル、学習塾、店舗等に |
| 備考 |
|---|
| 備考 ・初回保証料総賃料の100%、1年毎に1万円。 ・更新事務手数料 10,000円(税別) ・図面と現況が異なる場合は現況を優先させて頂きます。 |
この物件へのお問い合わせは以下よりお願いします。
LINEからでもお問合せ可能です!




コメント